We are interested in sourcing a valve and trough make of S/Steel/ aluminum discharge tray installed at the lower end of a 20ft TEU container for use in discharging polyolefin granular resins of bulk density 0.53 to 0.58 grams/ CC. Do you know of any manufacturer of such devices, especially those companies from US.
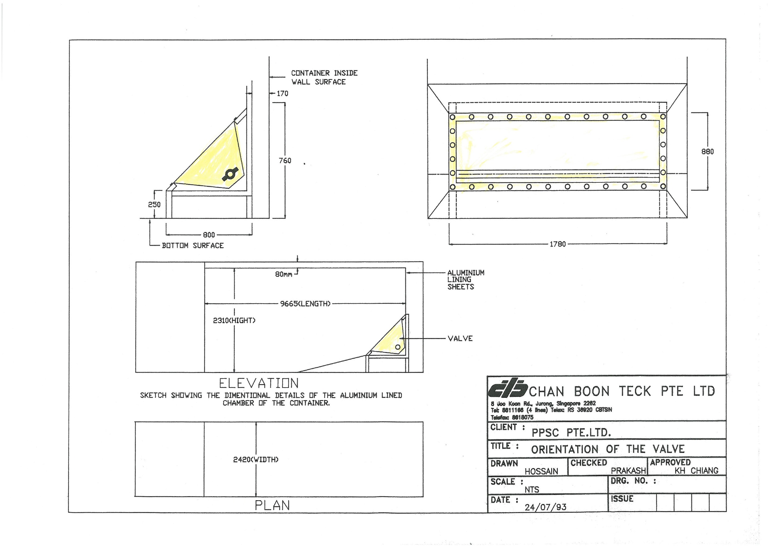
Please see attached drawing, item highlighted in yellow. Kindly let me know if you have any further query, thanks.
Valve Inquiry
We are interested in sourcing a valve and trough make of S/Steel/ aluminum discharge tray installed at the lower end of a 20ft TEU container for use in discharging polyolefin granular resins of bulk density 0.53 to 0.58 grams/ CC. Do you know of any manufacturer of such devices, especially those companies from US.
Please see attached drawing, item highlighted in yellow. Kindly let me know if you have any further query, thanks.
(double click on picture)
Thank you.
Howard Lee ■