Der Ortsteil Sonderbach in Heppenheim an der Bergstraße ist Produktionsstandort des traditionsreichen Unternehmens Röhrig, das dort bereits in 3. Generation Granit gewinnt.
Die überdurchschnittliche Produktvielfalt ist ein Grund dafür, dass „Kundennähe“ bei Röhrig nicht nur räumlich verstanden wird – dank hoher Innovationskraft hat sich das Unternehmen als zuverlässiger Werkstoffzulieferer in unterschiedlichsten Industriezweigen sowohl regional als auch international etabliert. Das betrieblich-technische Know-How hält mit den wachsenden Marktanforderungen fortlaufend Schritt.
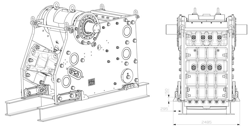
Aufbereitungstechnisch nutzt Röhrig bereits seit 1992 einen stationären Backenbrecher vom Typ C160 von Metso Minerals, der erst Anfang des Jahres gegen einen weiter entwickelten Nachfolger der gleichen Baureihe getauscht wurde. Die sogenannte C-Serie von Metso ist speziell zum Vorbrechen von Hartgestein ausgelegt und wird auch mit härtesten Aufgabematerialien mühelos fertig. Glücklicherweise verfügte der neue stationäre Backenbrecher über identische Maße, um die vom alten Brecher hinterlassene Einhausung nutzen zu können.
Marco Röhrig, Unternehmenslenker in dritter Generation, verspricht sich angesichts einzelner Produktverbesserungen vom Nachfolgemodell mindestens ebenso lange Standzeiten wie vom Vorgänger:
Wiederholungstäter: Norbert Ried (4. v. l.) hat bereits vor 20 Jahren
den Vorgänger des neuen C160 montiert und freut sich über die Ausdauer des leistungsfähigen Brechers,
der jetzt einem neueren Modell Platz macht. Weitere Personen von links nach rechts:
Betriebsleiter Volker Angermann, Montageleiter Maik Engelstätter, Technischer Leiter Stefan Koob,
Projektleiter Dominic Schönhardt, Geschäftsführer Marco Röhrig, Servicetechniker Stefan Kolze
sowie Mitarbeiter der Montagefirma Stafemo
Die Seitenwände des neuen C160 fallen um rund 10 % stärker aus, der hydraulische Spannzylinder ist größer und leistungsfähiger. Metso hat die Querrippen der Schwinge seitlich von 58 auf 75 mm – innen von 66 auf 100 mm verstärkt.
Ebenso von Vorteil ist die integrierte Motorkonsole, die sich bei Modellen anderer Hersteller außerhalb des Brechers befindet. Dieser glückliche Umstand hat dazu geführt, dass Röhrig die Einhausung ohne weitere Umbauten wiederholt nutzen konnte.
Mit der Überarbeitung des Antriebs- und Schwungradschutzes konnte der C160 ebenso punkten. Durch die robustere Konstruktion sind weniger Teile erforderlich und vereinfachen so Installation und Wartung. Alleine die Zugänglichkeit des Motors ist jetzt um ein Vielfaches leichter.
Unter Leitung des Montageleiters Maik Engelstätter von Metso konnte das Projekt (Aus-/Einbau) innerhalb von 2 Wochen erfolgreich durchgeführt werden.
Am Haken: Nachdem der alte C160 mittels Kran herausgehoben wurde,
erfolgte kurzerhand der Einbau des neuen Brechers.
Dazu wurde lediglich das Dach der Einhausung demontiert.
Fliegender Wechsel: Einbau nach Art der Einhausung
Den Tag des Einbaus behält Marco Röhrig sicher noch lange in Erinnerung: Schwinge und Brechergehäuse wurden für den Tag des Einbaus separat geliefert und erst vor Ort zusammengebaut. Innerhalb von einer Stunde erfolgte der Austausch gegen den alten stationären Brecher. Mit einem Autokran wurde der 85 t schwere Brecher millimetergenau in das Brechergebäude eingehoben. Nach der Positionierung des neuen Brechers in die bestehende Stahlbaukonstruktion galt es, die Anlage trotz der beengten Platzverhältnisse optimal zu befestigen. Spezielle Schwingungsdämpfer verhindern dort fortan in 2 Meter Höhe ein seitliches Wegrutschen des Brechers vom Träger. Nach der Installation aller elektrischen Leitungen erfolgte rund 1 Woche später der Probelauf mit Material.
Parallel zum Einbau des C160, der auch der erste der jüngsten Generation in Deutschland ist, wurde in der Edelsplittanlage bei Röhrig auch ein neuer Metso Kegelbrecher vom Typ GP100 montiert. Marco Röhrig geht davon aus, dass durch die technologische Verbesserung des neuen Metso Brechers Röhrig global nur Vorteile hat.
Röhrig legt hohen Wert auf eine konstante Produktqualität, maximale Wertschöpfung und optimale Veredelung seiner Sortimente. Vor dem Hintergrund der Tatsache, dass Röhrig für die folgenden 150 Jahre ausreichend Rohstoffreserven zur Verfügung stehen, lässt sich die Entwicklung unter dem Motto „Klasse statt auf Masse“ bedenkenlos fortschreiben.
Neue Brechergeneration bei Röhrig
Stationärer Brecher macht mobil
Neue Brechergeneration im fliegenden Wechsel
Der Ortsteil Sonderbach in Heppenheim an der Bergstraße ist Produktionsstandort des traditionsreichen Unternehmens Röhrig, das dort bereits in 3. Generation Granit gewinnt.
Die überdurchschnittliche Produktvielfalt ist ein Grund dafür, dass „Kundennähe“ bei Röhrig nicht nur räumlich verstanden wird – dank hoher Innovationskraft hat sich das Unternehmen als zuverlässiger Werkstoffzulieferer in unterschiedlichsten Industriezweigen sowohl regional als auch international etabliert. Das betrieblich-technische Know-How hält mit den wachsenden Marktanforderungen fortlaufend Schritt.
Aufbereitungstechnisch nutzt Röhrig bereits seit 1992 einen stationären Backenbrecher vom Typ C160 von Metso Minerals, der erst Anfang des Jahres gegen einen weiter entwickelten Nachfolger der gleichen Baureihe getauscht wurde. Die sogenannte C-Serie von Metso ist speziell zum Vorbrechen von Hartgestein ausgelegt und wird auch mit härtesten Aufgabematerialien mühelos fertig. Glücklicherweise verfügte der neue stationäre Backenbrecher über identische Maße, um die vom alten Brecher hinterlassene Einhausung nutzen zu können.
Marco Röhrig, Unternehmenslenker in dritter Generation, verspricht sich angesichts einzelner Produktverbesserungen vom Nachfolgemodell mindestens ebenso lange Standzeiten wie vom Vorgänger:
Wiederholungstäter: Norbert Ried (4. v. l.) hat bereits vor 20 Jahren
den Vorgänger des neuen C160 montiert und freut sich über die Ausdauer des leistungsfähigen Brechers,
der jetzt einem neueren Modell Platz macht. Weitere Personen von links nach rechts:
Betriebsleiter Volker Angermann, Montageleiter Maik Engelstätter, Technischer Leiter Stefan Koob,
Projektleiter Dominic Schönhardt, Geschäftsführer Marco Röhrig, Servicetechniker Stefan Kolze
sowie Mitarbeiter der Montagefirma Stafemo
Die Seitenwände des neuen C160 fallen um rund 10 % stärker aus, der hydraulische Spannzylinder ist größer und leistungsfähiger. Metso hat die Querrippen der Schwinge seitlich von 58 auf 75 mm – innen von 66 auf 100 mm verstärkt.
Ebenso von Vorteil ist die integrierte Motorkonsole, die sich bei Modellen anderer Hersteller außerhalb des Brechers befindet. Dieser glückliche Umstand hat dazu geführt, dass Röhrig die Einhausung ohne weitere Umbauten wiederholt nutzen konnte.
Mit der Überarbeitung des Antriebs- und Schwungradschutzes konnte der C160 ebenso punkten. Durch die robustere Konstruktion sind weniger Teile erforderlich und vereinfachen so Installation und Wartung. Alleine die Zugänglichkeit des Motors ist jetzt um ein Vielfaches leichter.
Unter Leitung des Montageleiters Maik Engelstätter von Metso konnte das Projekt (Aus-/Einbau) innerhalb von 2 Wochen erfolgreich durchgeführt werden.
Am Haken: Nachdem der alte C160 mittels Kran herausgehoben wurde,
erfolgte kurzerhand der Einbau des neuen Brechers.
Dazu wurde lediglich das Dach der Einhausung demontiert.
Fliegender Wechsel: Einbau nach Art der Einhausung
Den Tag des Einbaus behält Marco Röhrig sicher noch lange in Erinnerung: Schwinge und Brechergehäuse wurden für den Tag des Einbaus separat geliefert und erst vor Ort zusammengebaut. Innerhalb von einer Stunde erfolgte der Austausch gegen den alten stationären Brecher. Mit einem Autokran wurde der 85 t schwere Brecher millimetergenau in das Brechergebäude eingehoben. Nach der Positionierung des neuen Brechers in die bestehende Stahlbaukonstruktion galt es, die Anlage trotz der beengten Platzverhältnisse optimal zu befestigen. Spezielle Schwingungsdämpfer verhindern dort fortan in 2 Meter Höhe ein seitliches Wegrutschen des Brechers vom Träger. Nach der Installation aller elektrischen Leitungen erfolgte rund 1 Woche später der Probelauf mit Material.
Parallel zum Einbau des C160, der auch der erste der jüngsten Generation in Deutschland ist, wurde in der Edelsplittanlage bei Röhrig auch ein neuer Metso Kegelbrecher vom Typ GP100 montiert. Marco Röhrig geht davon aus, dass durch die technologische Verbesserung des neuen Metso Brechers Röhrig global nur Vorteile hat.
Röhrig legt hohen Wert auf eine konstante Produktqualität, maximale Wertschöpfung und optimale Veredelung seiner Sortimente. Vor dem Hintergrund der Tatsache, dass Röhrig für die folgenden 150 Jahre ausreichend Rohstoffreserven zur Verfügung stehen, lässt sich die Entwicklung unter dem Motto „Klasse statt auf Masse“ bedenkenlos fortschreiben.
Seitlich gesichert: Sogenannte Rockingham-Schwingungsdämpfer,
eine spezielle Entwicklung aus dem Hause Metso, sorgen für eine vibrationssichere Fixierung
der Anlage in räumlich begrenzten Verhältnissen.
Weitere Informationen:
https://edir.bulk-online.com/oldedirredirect/205572.htm205572.htm
Google Search:
http://www.google.com/search?client=...ulk-online.comsearch?client=safari&rls=en&q=metso+site:bulk online.com
http://www.google.com/search?q=metso...=lnms&tbm=ischsearch?q=metso+site:bulk online.com&hl=en&client=safari&rls=en&prmd=imvns&source=lnms&tbm=isch ■