Bedeschi: Raw Material Preparation

THE RAW MATERIAL PREPARATION



by Fabio Iurzolla

BEDESCHI S.P.A., Italy


The raw material preparation is the first stage of the process for cement preparation. This stage includes the raw material treatment from the entry into the cement factory to the technological stages of grinding and burning.

This is the least standard process stage that provides the highest number of variability which depends both on the various types of raw material physical characteristics and to the climatic conditions which heavily influence on its choice.

CRUSHING

The selection of a primary crushing system rather then a secondary type depends on the type of material, hardness, humidity and abrasiveness.

In the specific case, if we are dealing with very hard limestone and low moisture level, the choice will inevitably be an impact machine, gyratory crushers or jaw crushers. They allow a perfect crushing degree and thanks to the material low moisture level they do not suffer from clogging problems. (Fig. 1:- Rotors).

On the other hand, when we are dealing with limestone with high moisture degree, limestone quarries with inclusion of sticky material or even chalk quarries (as it often happens in Central/Eastern Europe), the choice will certainly be a double roller crusher. This is the only type of machine which can deal with sticky material, thanks to its rotors geometric configuration and to the suitable cleaning scrapers which prevent from any clogging trouble. (Fig 2: Rotors with sticky material)

The boundary between the two mentioned extreme cases is not evidently clearly reckoned and it mainly depends on the experience and ability of the technicians in charge of the selection of the most suitable machine.

Marl and clay primary and secondary crushing system, mainly follows the same criteria though, the natural characteristics of the mentioned material, favours the choice of the double roller crusher. The necessity of a double roller crusher is further emphasized and confirmed when the sticky material is handled during very rainy, snowy and cold climate conditions. This is the only type of crusher having the capacity of working with materials which can freeze on the rotors surface (requiring a suitable scraping) and harden if the boulders get frozen.

HOPPER AND APRON FEEDER

In addition to the selection of the crusher, there is the choice of the type of installation itself.

The best crusher feeding is by a hopper and an apron feeder continuously feeding the crusher.

The hopper must have the dimensions suitable to the flow of material discharged by the trucks and it advisable to grant a buffer suitable to contain one or two trucks of material.

With the modern dump trucks, the necessity of a 100-150 cu.m hopper of useful volume is quite frequent nowadays.

(Fig. 4: Crusher feeding hopper)

The hopper shape must be suitable for the correct material downflow, especially in case of moisture sticky material and in case of material subject to freeze: the wrong sizing or shape can cause material bridges and prevent the flow of the material and the consequent stoppage of the line.

The apron feeder extracts the material from the hopper and its characteristics must be appropriate to the processed material.

A primary unit apron feeder apt to process limestone must be able to accept the fall of big boulders of material (though with an adequate material layer beneath apron).

A crushing unit apron feeder apt to process sticky material first of all must have such a width to avoid the material bridge which would obstruct the down flow of material. Furthermore the apron must be able to tow and extract the material and be self-cleaning avoiding encrusting by sticky material.

GENERAL LAYOUT

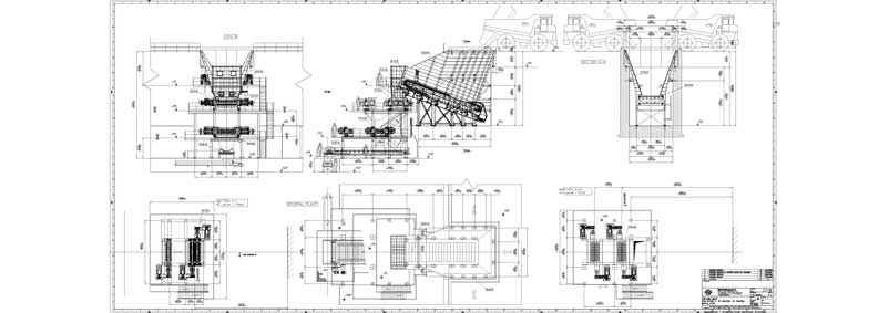
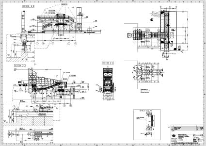
The selection of a fixed, mobile or semi-mobile crushing unit is based on the position of the crushing unit, on the lay out of the plant and whether its positioning will be the same or it will change during its life-time. (Fig. 5: Fix crushing group) (Figs. 6 & 7 & 8: Semi-mobile crushing group)

There can be therefore different configurations:

Cement hopper, lined with steel sheet.

Steel hopper of various dimensions, both hanging to civil works and/or self supporting

Fixed crushing units

Semi-mobile crushing units, assembled on skid which permit to avoid anchorage on earth and allow easier moving to the different areas of the plant

Surface feeding units, which allow the reduction of the hopper volume, eliminating the stand-by hopper but requiring contemporaneity between the truck unloading and the functioning of the apron feeder. (Fig. 9: Surface feeder)

As stated above the borderline between the different selections is not clearly and unambiguously definable; it’s up to the competence and experience of the technician to identify the choice of the most suitable equipment and it is the task of a reliable and skilled supplier to support and consult the users to select the proper solution on the basis of his experiences all around the world.

Once the raw material has been reduced to the requested grain size, there is the necessity to create the storage area for main raw material and raw mill and cement additives.

The main criteria guiding the selection of the storages are the following:

•The moisture of material and therefore its stickiness

•The pre-blending necessity

(Fig. 10: Reclaimer selection criteria)

The following diagram summarizes the mentioned criteria and the most suitable reclaiming machines according to the working requested conditions. Once the first macro-selection has been performed, there are other elements influencing the choice of the most suitable machine:

SCRAPER RECLAIMER WITH PRE-BLENDING NECESSITY

The selection is mainly oriented towards longitudinal or circular storage: both type of machines are very similar since they both have a traditional stacker (rotating or running) and a frontal rake reclaimer. (Fig 11: Longitudinal storage)

There are cases, though quite uncommon, where in the longitudinal storage the stacking is done by a central tripper or a shuttle belt conveyor hanging on the shed ceiling. The mentioned solution reduces the cost but the high dust level due to the fall of material must also be considered. (Fig. 12: Circular storage)

SELECTING CRITERIA

Available space: the circular storage needs at least 30%; less space than the longitudinal storage and consequently the shed can be much smaller.

Preblending: the longitudinal storage is highly discontinuous in the cones at the beginning and ending of pile. On the other hand, the pile section of the circular storage is more constant; the section is always the same on nx360° longth.

Throughput constancy: the longitudinal storage is highly discontinuous in the cones at the beginning and ending of pile. On the other hand, the pile sectional of the circular storage is more constant; the section is always the same nx360° long

Possibility of extension in future: the longitudinal storage can be extended in the future, while the circular storage cannot. However, from a statistic point of view, from our experience, very few longitudinal storages have been extended neither.

Idle time during pile exchange: once the circular storage has performed the first pile, it goes on with a continuous working process, which is technically endless, followed by the reclaimer.

The longitudinal storage, with its two piles, has a discontinuous process: the stacker is working on one pile and the reclaimer on the other one.

The pile exchange is normally performed by the operator.

SCRAPER RECLAIMER WITH NO PRE-BLENDING NECESSITY

The stacking is performed with a traditional lateral stacker or with a tripper.

The reclaimer can be selected among a lateral cantilever boom reclaimer, a portal or semiportal reclaimer.

The process is absolutely equivalent; the different choice is due only to the plant design reasons and to the costs of the civil works.

With a boom length bigger than 25-30 m., it is more economic to use a portal reclaimer.

The very long cantilever boom requires a very heavy counterweight with relevant overall dimensions and suitable elevated loading on the foundations.

A further important point in the longitudinal reclaimers is the possibility of obtaining piles which are not delimited by transversal walls. This can happen with quite long piles (with a rate length/width of approx. ≥ 2,5 ÷3).

When the rate is lower to that above mentioned, the length of the full section is the same or shorter to that of the end cones with the consequent discontinuity of the reclaiming.

In this case it is advisable to have transversal walls which delimitate the deadlock problems and have thus the pile full section all along the length.

(Fig. 12: Longitudinal storage with a lot of stalled material

This is a typical situation in the additives storage section where there might be numerous and very short deadlocks, of different materials.

The automatic control of stacker and reclaimer is often the solution to this kind of problems: the fast and frequent pile change can be performed without the need of any operator.

The mentioned situation also implies some specific technical solutions to the machine and its relevant accessories and electronic sensors: the reclaimers work as dosing system since they have to fill the downstream correspondent hopper; therefore the pile changes are controlled by the downstream hopper minimum level. See the attached cycle diagram. (Figs. 13 & 14).

BUCKET RECLAIMER WITH NO PRE-BLENDING NECESSITY

In case of moist and sticky materials (with moisture higher than 14%), it is fundamental to utilize bucket machines (not with scrapers). The Bedeschi buckets are suitable to reclaim material with moisture higher than 30% and their scraping system assures the buckets perfect emptying and cleaning. These difficulties are emphasized when the process is performed in very cold countries where the material characteristics can change quite often and depend both on temperature and according to the different seasons. In Springtime and Autumn the material can be very sticky while it gets frozen in Winter. In this case nothing is better than the bucket system which can even break the icy crust formed on the surface of material. (Fig 15: Bucket reclaimer).

The selection criteria are the same as described in the “Scraper reclaimer with no pre-blending necessity” though with the use of buckets instead of scrapers.

Bucket reclaimer with pre-blending necessity

The only possible solution for pre-blending and reclaiming of moist and sticky material is the Bedeschi reclaimer Bel C with side-walls. (Fig. 16: Bel C reclaimer).

It is a bucket reclaimer which can reclaim the sticky material, and empty and clean the buckets, by means of a special blade scraper system. (Fig. 17: Bel C reclaimer).

The trolley and its relevant boom runs along the bridge and allow the frontal reclaiming of material from the various stacked layers granting in this way the mixing of the different layers and an excellent pre-blending.

Bedeschi can boast of the widest experience for this type of reclaimer thanks to the numerous references all over the world.

The installation of hoppers down-stream the line, before the grinding system, can be a great disadvantage once dealing with the handling and conveying of sticky materials: the risk is to clog the hoppers and stop the line. A very valid solution is to eliminate the intermediate hopper and feed the down-stream mill directly from reclaimer (this is valid both for the lateral bucket reclaimer and for the frontal Bel C bucket reclaimer). In this case it is necessary to install a weight feeder on the machine, suitable to measure and feed continuously the down-stream mill. This solution requires to equip the reclaimer motors with inverter, controlled by the weight feeder feed back, which will allow to use the reclaimer as a dosing system.

The excellent result of the mentioned system can be seen in the attached diagram where it is possible to notice the constant reclaiming value and the perfect weighing precision for a continuous feeding to the mill.

Bedeschi Company can supply all the above mentioned handling solution for raw materials: the different types of material and the climatic conditions prevent the client to have standard solutions.

Bedeschi is honoured and at the Client’s disposal to study and design together with them, any tailor made solution, considering the various situations that differ from case to case: every time it is an important challenge to find out new reliable solutions: this is what has recently happened in the Eastern European countries with the installation of many new cement dry lines.

For more information, please visit:

bedeschi_1-rotor

href="https://edir.bulk-online.com/profile/8132-bedeschi.htm" target="blank">https://edir.bulk-online.com/profile/8132-bedeschi.htm

bedeschi_1-rotor

href="http://www.google.com/search?hl=de&client=safari&rls=en&q=Bedeschi+site%3Abulk-online.com&btnG=Suche&lr=" target="blank">http://www.google.com/search?hl=de&c...btnG=Suche&lr=

Attachments

bedeschi_1-rotor (JPG)

bedeschi_2-rotors-with-stic (JPG)

bedeschi_3-unloading-from-t (JPG)

bedeschi_4-crusher-feeding- (JPG)

bedeschi_5_keystone_modific (JPG)

bedeschi_6_fls-podgorenks (JPG)

bedeschi_-7_semi-mobile-cru (JPG)

bedeschi_8_semi-mobile-crus (JPG)

bedeschi_9__holcim-nobsa_mo (JPG)

bedeschi_10 (JPG)

bedeschi_11_longitudinal-st (JPG)

bedeschi_12_circular-storag (JPG)

bedeschi_13_long (JPG)

bedeschi_14 (JPG)

bedeschi_15_bucket-reclaime (JPG)

bedeschi_16_belc (JPG)

bedeschi_17_boom-+-belt-wit (JPG)

Write the first Reply