
Pneumatic Powder Pump
Continuation from previous post ...
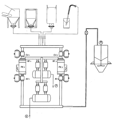
The filling and discharge cycles of both powder containers are controlled in such a way that one powder chamber is alternately filled while the other is discharged.
The suction and blowing conveying pipe line is mounted on the suction and pressure side on each one material splitting device (see Figure below).
Depending on the material to be conveyed, the filling and discharge cycles (i.e. the suction and pressure intervals) can be infinitely adjusted between 0.25 and 5 sec. Therefore even reproducable volumetric dosing jobs can be realized.
The units are manufactured in modular design. 5 sizes are available with variable powder container volumes for conveying quantities from 100 to 6300 l/h. They can be designed for a multitude of jobs and specific solutions and meet the demands of both process and safety engineering.
All the product contact parts are made of stainless steel or special materials. The units are controlled either pneumatically or by PLC. Vacuum and pressurized air resp. inert gas are required or provided by the user to operate the equipment.
Our many years’ experience in the field of pneumatic bulk conveying together with the good results of recent Duo Flow applications enable us to develop tailored solutions to meet all the special demands of our customers.
Benefits:
- dust-free operation in enclosed systems
- self-priming, constant conveyance
- gentle conveyance, minimum wear
- low conveying gas volume, economic operation
- max. vacuum: 60 mbar, max. conveying pressure: 6 bar
- reliable discharge of residues, easy cleaning
- compact design, space-saving installation
- high system reliability, few moving parts
- pressure conveying by inert gas, EX proof acc. to ATEX
- flexible use due to pipe and hose lines from and to the
target stations
Applications:
- colour and varnish industry
- chemical industry
- pharmaceutics and food industry
- rubber and plastics industry
- cement, lime, and plaster industry
- bulk materials processing.
To determine the design parameters a test plant is available in our works. Before we work out a detailed and binding quotation trials can help to determine the specific material and system data. The customer will be charged for such trials at cost price.
For further information, please visit:
https://edir.bulk-online.com/profile...enstechnik.htm
Attachments
■
Pneumatic Powder Pump
Transporting liquids by pumps is a well-known and proven conveying method.
However, pumping powders, pigments, or other fluidized bulk materials by a pneumatic system is a quite new technology. Our innovative powder pump type Duo Flow (patent pending: 10 2004 011 343.2) combines two well-tried and proven pneumatic conveying processes in one functional unit: vacuum suction pulse conveying and pressure pulse conveying (see Photo below).
Using this conveying method, the powder is transported like a liquid in a hydraulic system. This means both the suction and pressure conveying lines are constantly filled with powder.
This so-called dense phase conveying achieves material loadings of 15 – 40 kg per kg conveying gas and allows to transport large volumes even with small pipe line diameters. Bulk materials are conveyed at velocities between 2 and 10 m/sec. which means a gentle and low-abrasion material transport.
With the Duo Flow systems, the conveyed volume is determined by the carrier gas conveying pressure between feeding and discharge point – contrary to that of pneumatic low or medium pressure conveying systems which depends on the conveying gas flow velocity.
The double arrangement of material containers at intermittent filling and discharge cycles maintains a continuous and pulse-free material flow in the suction and pressure conveying lines.
Continued on next post below...
Attachments
gel1_news (JPG)
■