Suitable Shape Of Chute
We have a situation at a port,where the coal unloading system is designed @ 2500 tph. The unloading is being done with 2 MHC,each having capacity @1250 tph. The material from the ship hold is unloaded by these cranes in to mobile hoppers at berth. The Grizzly over the hopper is designed for( -)150 mm coal.
At present, due to unavoidable circumstances bigger lumps of coal 1200 mmx500 mm are also coming with the parcel,the rate of these bigger lumps are @100 tph on each hopper. Due environmental norms it is not recommended to crush the coal on berth (by installing roller crusher under the mobile hopper).We have following options--
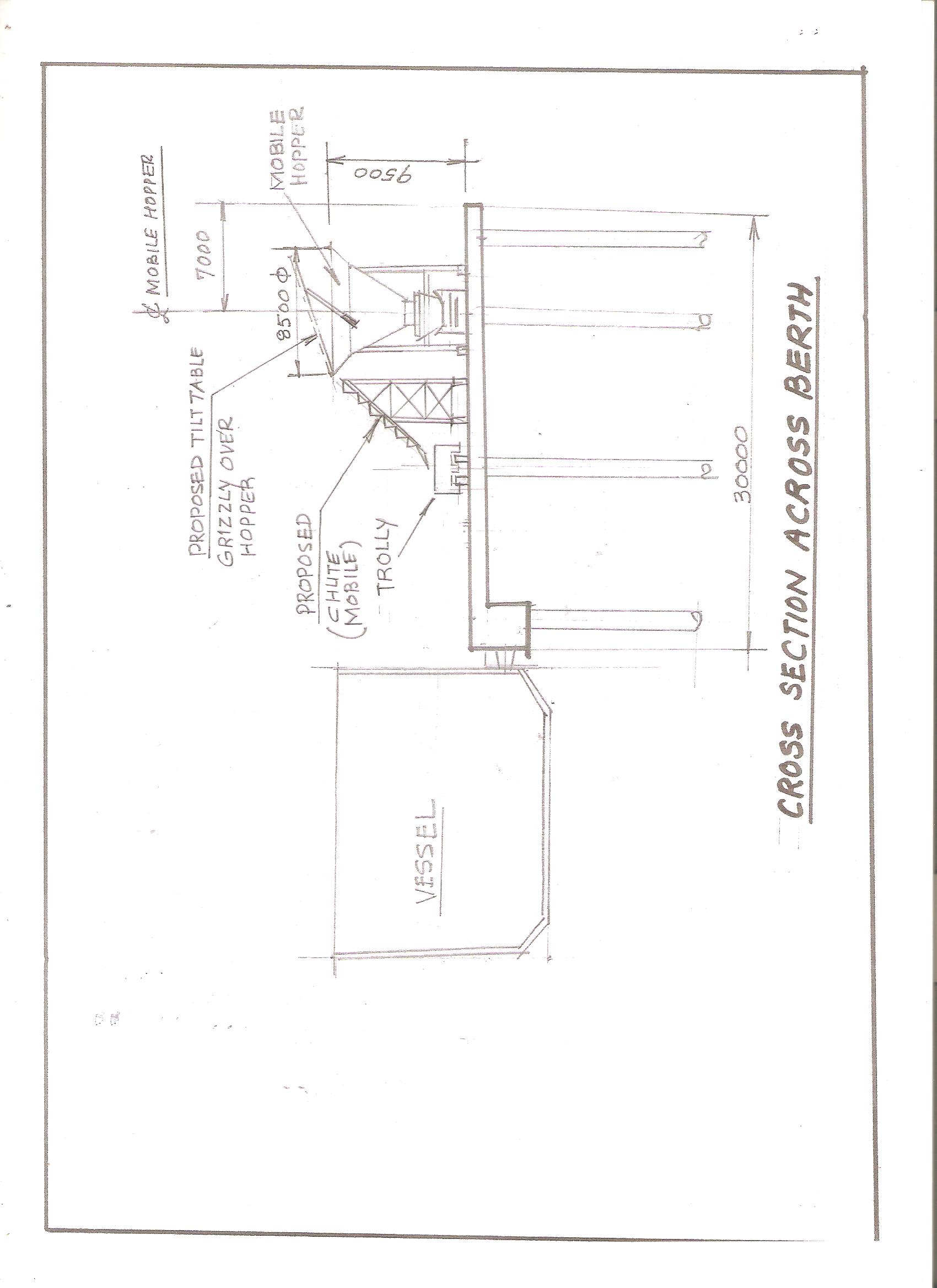
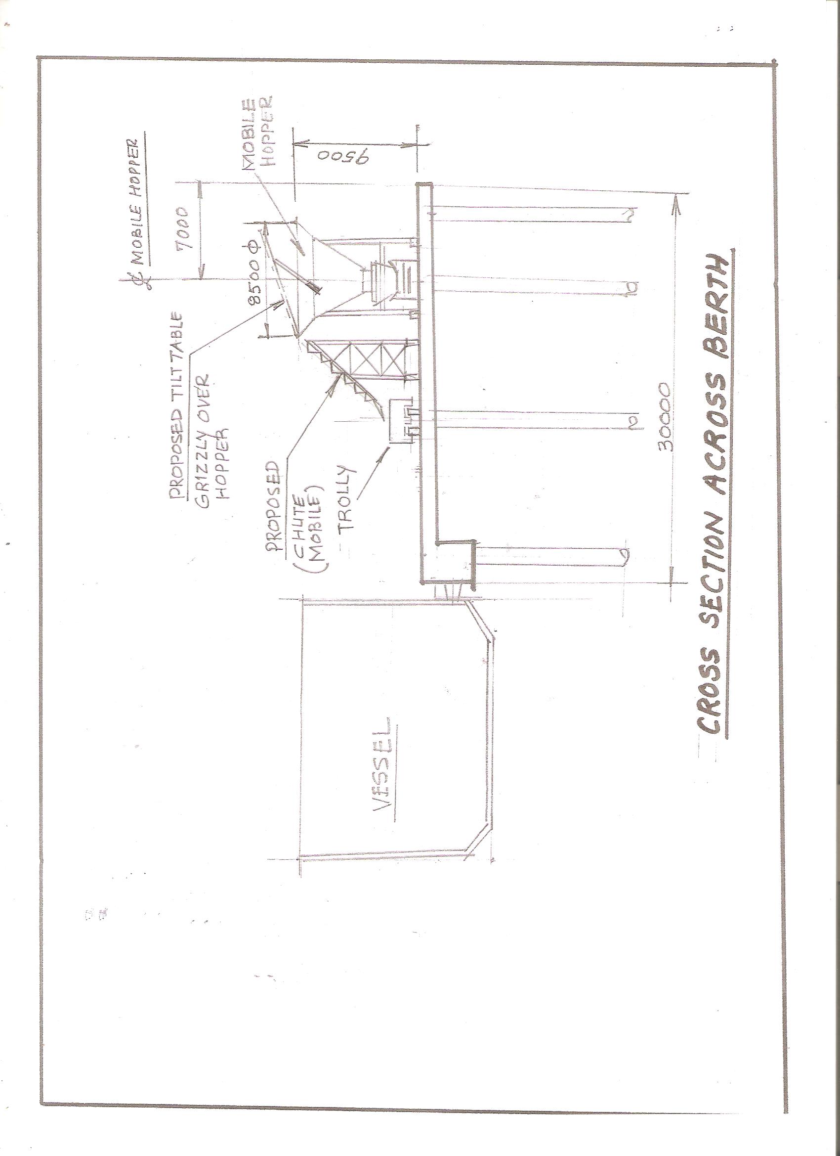
Option -1 To make the grizzly tilt table and transfer oversize material in to the trolleys parked on the berth. In this case,since the capacity of over sized material is 100 tph,there will be lot of trolleys moving on the berth,which is not advisable. (ref.Chute design 001 sketch).Do we have better options?
Option-2 In this option,we have added one new slat conveyor (with spillage conv. below this) at other side of berth(ref. sketch SK/LIB/002) with extended platform. The over sized material will be transferred from tilt table mobile chute to slat conveyor and then conveyed to crushing system.Since, the lump size is big up to 1500mmx200mm. Is it recommended to put inclined chute as shown in the sketch or we have other option about chute shape.
Anil Seth
Attachments
■
Re: Design Of Mobile Chute
I would not recommend going with mobile chute and mobile trolley. Why not make the chute part of the mobile hopper and then have it dump directly into the trolley. That way the chute may be able to be designed with a rock ladder that would minimize the impact on the trolley.
I can create flow simulation for your design or assist you with the design of the chute.
Gary ■
Gary Blenkhorn
President - Bulk Handlng Technology Inc.
Email: garyblenkhorn@gmail.com
Linkedin Profile: http://www.linkedin.com/in/gary-blenkhorn-6286954b
Offering Conveyor Design Services, Conveyor Transfer Design Services and SolidWorks Design Services for equipment layouts.
Design Of Mobile Chute
Dear Gary, Thanks for your advise. My mail id is libranengineering@gmail.com. Please quote for animation of Chute with its shape/design and time required for the same.
Regards, Anil ■
Re: Design Of Mobile Chute
Wouldn't it be easier to modify the hoppers and take all the coal off the jetty and then run the material through a simple sizer somewhere where there was more room? Side loading over sized material as you are suggesting is not very smart unless you keep the material speeds down and then rely on hungry boards to contain the material.
Cheers
Colin Benjamin
Gulf Conveyor Systems Pty Ltd
www.conveyorsystemstechnology.com ■
Enough Should Be Enough.
Get Real Sunshine! The coal has grown 300mm on the same day.
According to a very recent thread you have had this problem before. The very same problem in fact. Clearly the video solution didn't work.
But, to elaborate on the sentiments of the previous replies:
Why are monstrous mobile cranes being used in conjunction with a geared vessel?
Regular collisions seem inevitable considering the proximity of the foremost mobile crane with the ships foremost crane.
How do you move a travelling hopper along a fully enclosed conveyor in this design? It's easy enough to do provided you know what is required.
As shown in figure 2 the traffic situation is horrendous, probably blocked completely on occasions.
What is the site for the envisaged crusher? It can't be near the shore according to the environmental restrictions.
Anyway this jetty is well enough piled to dispell Rolands concerns of the previous thread. It better be: in light of those mobile crane masses!
Either proposal requires extensive covered conveyors to who knows where. One requires a new fragile jetty extension to boot: which does away with any future lightering options.
Without any end elevations it is open to debate whether the proposed spillways are wide enough to prevent the 1500mm lumps from rolling sideways and landing in the drink.
There is a shipboard grab approaching the foremost hopper nearest the bows and the sternmost grab is deep in the bowels of its respective hold. If you want realistic comment you ought to make the correct adjustments to your model before throwing confusion to the winds...which then also begs the question why waste time on unrealistic modelling when the accompanying sketches are so rudimentary?
This a very unsatisfactory berth design: past, present and future. I doubt if Royal Haskoning could come up with something like this even on one of their worse days!
Looking forward to the next gripping/grabbing episode...well I am, for one. ■
John Gateleyjohngateley@hotmail.comwww.the-credible-bulk.com
Design Of Mobile Chute
Dear Benjamin, Thanks for your advise. About modifying the hopper outlet and conveying the entire package with bigger lumps off the jetty by conveyor and then put it to sizer, will be a better option but in this case,the existing berth conveyor is designed for max 200 mm lumps ,by using this option, we will have to change the existing conveyor on the berth also.
You rightly said that unloading the coal from using side way chute will not be a smart choice.As suggested by you, we can bring down the speed of over sized (slat conveyor) up to 1.2-1.5 m/sec and then takeout the material through special designed chute.
Thanks again for your advise.
Regards, Anil
Cheers
Colin Benjamin
Gulf Conveyor Systems Pty Ltd
www.conveyorsystemstechnology.com
■
Design Of Mobile Chute
Thanks Dear John for your valuable advise.
Regards, Anil
According to a very recent thread you have had this problem before. The very same problem in fact. Clearly the video solution didn't work.
But, to elaborate on the sentiments of the previous replies:
Why are monstrous mobile cranes being used in conjunction with a geared vessel?
Regular collisions seem inevitable considering the proximity of the foremost mobile crane with the ships foremost crane.
How do you move a travelling hopper along a fully enclosed conveyor in this design? It's easy enough to do provided you know what is required.
As shown in figure 2 the traffic situation is horrendous, probably blocked completely on occasions.
What is the site for the envisaged crusher? It can't be near the shore according to the environmental restrictions.
Anyway this jetty is well enough piled to dispell Rolands concerns of the previous thread. It better be: in light of those mobile crane masses!
Either proposal requires extensive covered conveyors to who knows where. One requires a new fragile jetty extension to boot: which does away with any future lightering options.
Without any end elevations it is open to debate whether the proposed spillways are wide enough to prevent the 1500mm lumps from rolling sideways and landing in the drink.
There is a shipboard grab approaching the foremost hopper nearest the bows and the sternmost grab is deep in the bowels of its respective hold. If you want realistic comment you ought to make the correct adjustments to your model before throwing confusion to the winds...which then also begs the question why waste time on unrealistic modelling when the accompanying sketches are so rudimentary?
This a very unsatisfactory berth design: past, present and future. I doubt if Royal Haskoning could come up with something like this even on one of their worse days!
Looking forward to the next gripping/grabbing episode...well I am, for one.
■
The Empire Strikes Back!
In the parallel thread Roland has bemoaned the absence of feedback which prevails in these forums. There is a background scenario which implies that we are wasting our time. For myself I have plenty of time and when not gardening, training my parrots or playing my saxophone I sort of enjoy wasting my time with this rubbish. Particularly with threads like these. This thread starter has presented deliberately contradictory information in a very poor format, ignores points presented to him and has the gall to quote what has been presented to him as reason for ignoring those very points raised.
I will not get off his back! Enough said now? ■
John Gateleyjohngateley@hotmail.comwww.the-credible-bulk.com
Re: Design Of Mobile Chute
Thanks John Sir, I salute you.
Regards, Anil
I will not get off his back! Enough said now?
■
Design Of Mobile Chute
Dear Hon. Members .I was at site yesterday, the actual facts are--
The bigger lumps 200 mm and above are max. 3 % of the feed unloading rate of 12--1250 tph on each mobile hopper. These bigger lumps are not coming regularly also(Depends on the source).We shall be going for the following option--
Remove Grizzly plate from the top and at the bottom of hopper.
Installed, Grizzly feeders after modifying the bottom of the hopper(lumps 200 mm and less will pass through the gaps between the grizzly bars) and the over sized material will be collected on other side of berth through a special chute). It will be better to provide two nos. Grizzly feeder @ 700 tph each(inverted y shape) or a single @ 1300 tph?.
Two nos. of Grizzly will be better in case one grizzly fails.In this case atleast one grizzly will work and out put cap. will be 6-700 tph.
What care should be taken to save the hopper's side walls and bottom from the direct impact of the lumps up to 1000 mmx200 mm.
Thanks, Anil ■
Re: Design Of Mobile Chute
Anil
I sent you another viable option via email that your client may prefer requiring no modification to the existing hopper. Please review your email and get back to me.
Gary ■
Gary Blenkhorn
President - Bulk Handlng Technology Inc.
Email: garyblenkhorn@gmail.com
Linkedin Profile: http://www.linkedin.com/in/gary-blenkhorn-6286954b
Offering Conveyor Design Services, Conveyor Transfer Design Services and SolidWorks Design Services for equipment layouts.
Putting The Cart Before The Horse
You'd all better get a move on. Some comedian has already put out this tender invite , see News from Industry, seemingly before he had even seen the job or misdirected your valuable input. I was wasting my time at Angkor Wat for a few days and this thread compares well. ■
John Gateleyjohngateley@hotmail.comwww.the-credible-bulk.com

Design of Mobile Chute
take max. 150-175 mm size,the conveyor beneath the hopper is also designed for same size. Each MHC has a cap. of 1250 tph. Now,sometimes bigger size of lumps 1500x500 mm--up to 7% (100 tph) is also being unloaded in to mobile hopper. Due to bigger size,the hopper at the top gets chocked and the bigger size of material is being removed manually which decreases the unloading capacity of 1250 tph.
We are proposing--
1. A mobile chute and a tilt table grizzly which will transfer the over sized material to the trolley (parked on the berth) through inclined mobile chute. Due to big size of coal there will be impact on the trolly.In this case, the design of the trolley top and chute needs to be look in to.Due to higher capacity of oversize material there will be line of trolleys on the berth which will hampered the operation.
2.In second option (Ref Sketch--SK/LIB/002), where we have installed the slat conveyor with mobile chute on other side of berth. Material from the tilt table plate will be convey to the conveyor and will be taken for crushing. Again in this option also we need to see on mobile chute design.
href="https://forum.bulk-online.com/attachment.php?attachmentid=39819&d=1400029812" id="attachment39819" rel="Lightbox82740" target="blank">
We request to the expert on this forum to advise on this.
Regards,
Anil
Attachments
sk lib 002 option 1 001 (JPG)
■