Choking

Posted in: , on 21. Feb. 2006 - 15:50

Dear Sir,

Problem: Choking in input hopper

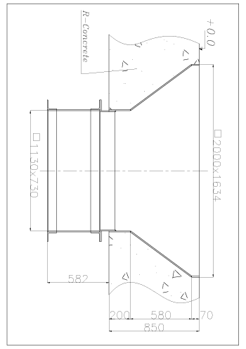
Figure of the Hopper: Enclosed

Material: Concentrated Iron Ore

Loading: It is done by Loader or bulldozer

Outlet: Pin gate + Horizontal vibrator + conveyor belt

Your recommendation will be appreciated.

Best regards,

A. R. Madineh

Attachments

hopper4 (GIF)

Bin Problems

Erstellt am 21. Feb. 2006 - 09:55

The easiest way to solve your problem is to install a grizzly to slow down the material and break it up while it is being dumped/pushed on the hopper.

It will all depend on the size of the iron ore you are trying to feed through the hopper and hos wet it is.

Re: Choking

Erstellt am 24. Feb. 2006 - 09:58

The corner angles for the 2 possible chute configurations are 41 & 49 degrees. These are both too tight for moist coal. Consider filletting the corners by eg 150mm radii. Sketches attached.

Attachments

new folder (ZIP)

John Gateley johngateley@hotmail.com www.the-credible-bulk.com

Re: Choking

Erstellt am 26. Feb. 2006 - 08:51

Corrigendum : For corner angles read Valley Angles & for coal read Material.

John Gateley johngateley@hotmail.com www.the-credible-bulk.com

Chute Blocking

Erstellt am 27. Feb. 2006 - 02:57

Johngateley has the right idea, because materials tend to stick in sharp corners, but I would think that the radius quoted is quite small to offer a large improvement as it retains the inclination of the original gully angle.

I would suggest a top radius of nom 450mm, reducing to a tiny radius at the bottom of the gully or, more simply, filling in the corners with flat gussets that are nom 650 wide at the top tapering to 50 wide at the bottom and cover the corners. This forms a steeper surface and obtuse, steeper gullys that are less likely to hang up.

Re: Choking

Erstellt am 27. Feb. 2006 - 05:05

Lyn Bates has provided the defintive solution. Thanks.

John Gateley johngateley@hotmail.com www.the-credible-bulk.com